A Cut Above The Others...Port Douglas Luxury Beachfront 'Mandalay' Executive Apartment No.12

'Mandalay' is one of Port Douglas' most prestigious and sought after beachfront complexes. Mandalay Luxury Beachfront Apartment No.12 is a standout, renovated 3 bedroom, 2 bathroom Executive Apartment directly opposite Four Mile Beach, just a few minutes walk from Macrossan Street and offers an unparalleled lifestyle of luxury and relaxation.

Mandalay Luxury Beachfront Apartments with its elegant and classic 'Plantation' style design is an iconic address in Port Douglas, located on the corner of Garrick and Sand Street.

This could be your next investment with added financial benefits!

Excellent income producing freehold luxury beachfront holiday apartment.

Classic Beachfront Elegance - Newly Renovated with new furniture items included.

Conveniently walk to Macrossan Street from Apartment No.12 - an income producing Executive Apartment directly opposite Four Mile Beach.

With its combination of elegant design, premium facilities, and an unbeatable beachfront location, just a few minutes walk from the boutiques, cafes and restaurants of Macrossan Street, Apartment No. 12, a second floor executive apartment represents a rare opportunity for tropical coastal living in Port Douglas. Perfect for discerning buyers seeking a luxury holiday home, this is a true gem in Port Douglas, North Queensland - one of the most desirable locations in the country.

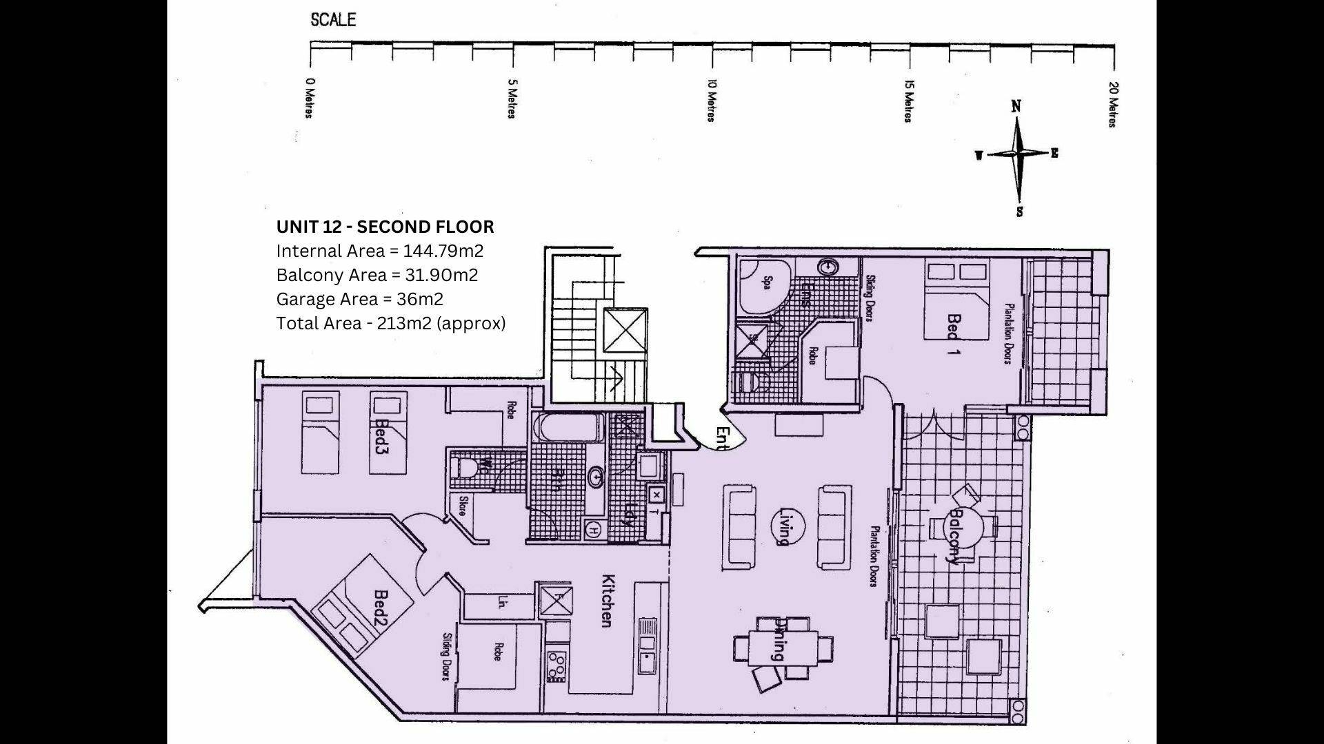
At 213m2, Apartment No. 12 overlooks the large resort style swimming pool and manicured tropical gardens from two private balconies. Plantation shutters provide privacy or open to a seamless flow in to the spacious and modern, open plan interior with living, dining and kitchen area allowing for perfect indoor-outdoor alfresco tropical living. The modern kitchen is equipped with premium appliances and ample storage. The master bedroom offers a retreat of its own, complete with ensuite bathroom, walk-in wardrobe and access to a private balcony with pool views. Two additional and generously sized bedrooms, both with built-in wardrobes, share access to a modern, well-appointed second bathroom. The apartment is finished with high-quality furniture and fixtures, has full laundry facilities and is air conditioned throughout. Apartment No.12 includes two secure underground car parks.

Complex Features:
Two resort-style swimming pools set amidst lush, landscaped gardens.
Enjoy access to a full-size tennis court and BBQ facilities.
Direct Beach Access - rare and convenient direct access to popular Four Mile Beach.

The current owner has appointed the Mandalay management team to holiday let the apartment, generating a consistently solid income while still enjoying personal access to the property throughout the year.

Mandalay Management Letting Appointment and Mandalay Product Disclosure Statement available on request only from Exclusive Agents Heather Carle and Tony McGrath.

Act now to own a slice of paradise with added financial benefits!

This exceptional property is available for inspection by private appointment only and will be sold furnished. To obtain further details including the Management Letting Appointment or to arrange a private inspection, contact Exclusive Agent:

Heather Carle, T 0437 966 030, E heather@tonymcgrath.com.au

Property Code: 62
3 2 2
Address 12, 1-5 Sand St, Port Douglas
Price SOLD for $1,225,000
Property Type Residential
Property ID 62
Category Apartment
Floor Area 213 m2

Agent Details

Heather Carle photo

Heather Carle

0437 966 030
View Profile