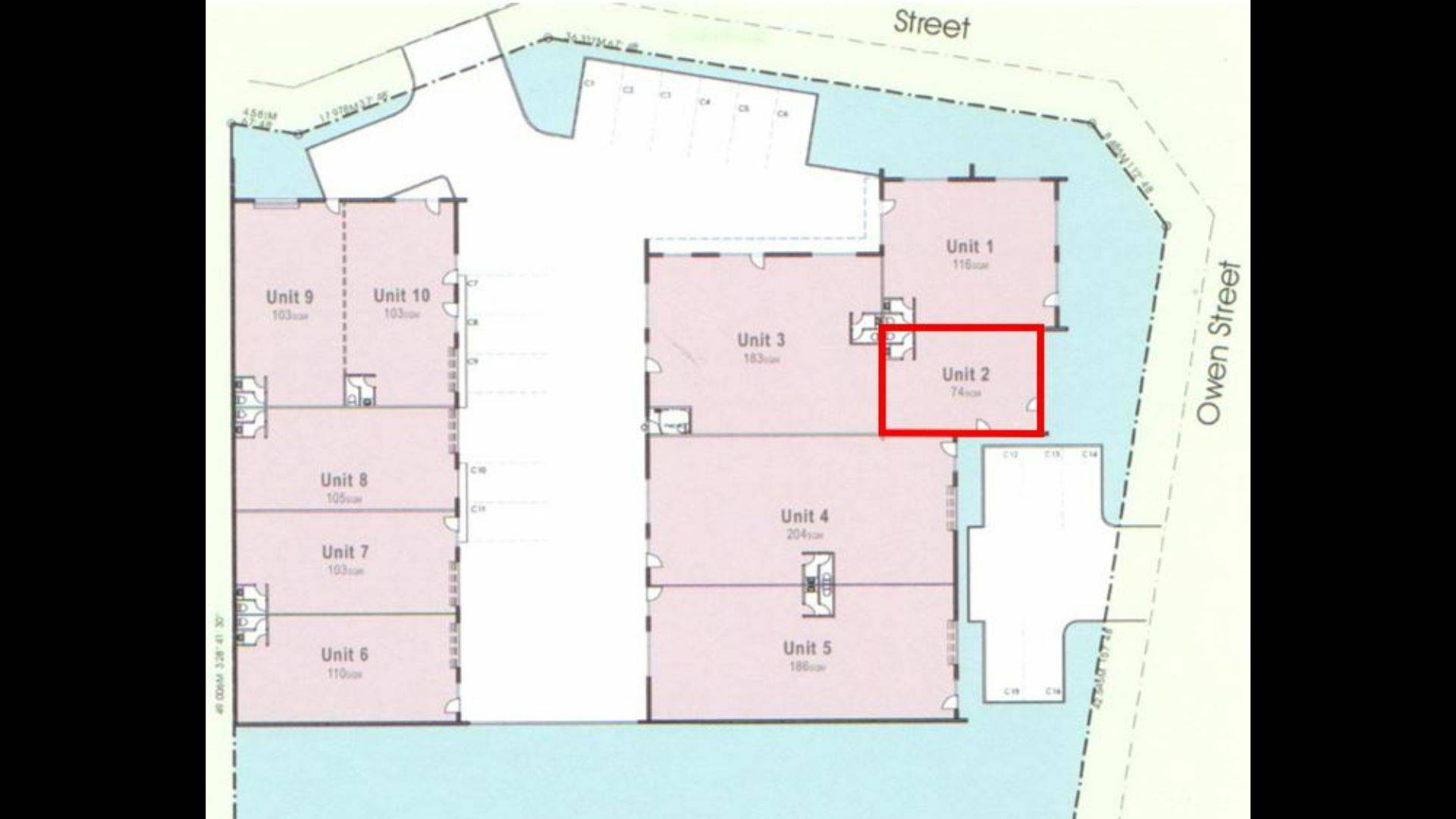
Don't Miss This Opportunity! Dual Entrance Commercial Premises with Exceptional Exposure in Craiglie, Port Douglas - 74m2

Walk in, start trading!

Dual Entrance Versatile Business Unit with Exceptional Street Exposure & Business Grade Fibre to premises NBN Connection in Craiglie Business Park - 74m2 - Will suit Office, Studio, Gallery, Retail

Outstanding opportunity for owner-occupiers or savvy investors—this tidy and well presented blank canvas commercial space in a tightly held precinct offers flexibility, value, and long-term upside. Positioned in a growth corridor and surrounded by quality businesses, this space is primed for your future vision.

Located in the sought-after Craiglie Business Park, this well-presented 74m2 business unit offers a superb opportunity for owner-occupiers or investors seeking a functional and flexible space in a high-exposure location. Located on the corner of two busy streets in the heart of Port Douglas' industrial precinct, the property enjoys excellent frontage to Owen Street, maximising visibility to passing vehicle traffic.

Unlock outstanding future potential – the property offers scope for an upper-level expansion (STCA), making it ideal for investors or owner-occupiers looking to maximise the site’s value.

Key Features:
- Total area: 74m² – fully tiled throughout
- Prime street frontage in a high-traffic location with two entrances
- Use of two exclusive-use car parks
- Functional fit-out comprising internal toilet and kitchenette
- Divided office spaces to support privacy and productivity
- Office furniture included: built-in counter, large meeting table with four chairs, console table, lounge area with couch and armchair (inventory available on request)
- Business grade fibre to premises NBN connection (available from September 2025)
- Two split-system air conditioning units for year-round comfort
- Security system available
- Separate power and water metres

Ideal for a variety of uses such as an office, showroom, studio, gallery or similar business setup, the space is offered for sale with vacant possession, allowing a new owner to move in and start trading with minimal setup.

Don’t miss this opportunity to secure a professional, ready-to-go business premises in the commercial hub of Port Douglas.

Price - $275,000.00

Contact Exclusive Agent Heather Carle today for further information and to arrange an inspection.

Heather Carle
T 0437 966 030
E heather@tonymcgrath.com.au

Disclaimer: Please note that some furniture and furnishings may differ from those shown in the photographs. Images are for illustrative purposes only and may not reflect the current presentation of the property.

Property Code: 67

2 74m2
Address Unit 2, 17-19 Owen St, Craiglie
Price SOLD
Property Type Commercial
Property ID 67
Commercial Listing Type Sale
Category Offices, Industrial/Warehouse, Showrooms/Bulky Goods
Land Area 74m2
Office Area 74m2
Total Area 74m2

Agent Details

Heather Carle photo

Heather Carle

0437 966 030
View Profile